På Impala-grunden ved Vestre Ringvej og Sankelmarksvej i Hvinningdal i Silkeborg skal der bygges 72 ejerlejligheder på mellem fra 75 og 220 kvadratmeter.
Det oplyses i en pressemeddelelse fra Enemærke & Petersen, der står bag det 8.500 kvadratmeter store boligprojekt.
– Boligprojektet på Vestre Ringvej er det næste projekt af slagsen for Enemærke & Petersen, hvor vi står for hele udviklingsprocessen, udtaler Michael Kühn Thomsen, projektudviklingschef i Enemærke & Petersen.
– Vi har arbejdet med projektudvikling af boliger for private aktører i en årrække i Enemærke & Petersen, og i 2023 tog vi første spadestik på ejendomsudviklingsprojektet i Kildebjerg Ry. Efter succesen dér, er vi klar til at kaste os over endnu et velbeliggende udviklingsprojekt.
Boligerne skal opføres på grunden, hvor Hotel Impala tidligere lå. Den sydvendte beliggenhed på Vester Ringvej giver projektet udsigt til både sø og skov, påpeger Michael Kühn Thomasen.
– Boligerne skal bygges på en kuperet grund. Vi har haft en god dialog med Silkeborg kommune om at skabe et projektet, der bliver tilpasset til terrænet – og ikke omvendt. Samtidig har vi kunne tilgodese flere af de ønsker der er fremsat af naboerne i den foregående lokalplansproces – og det er vi glade for.

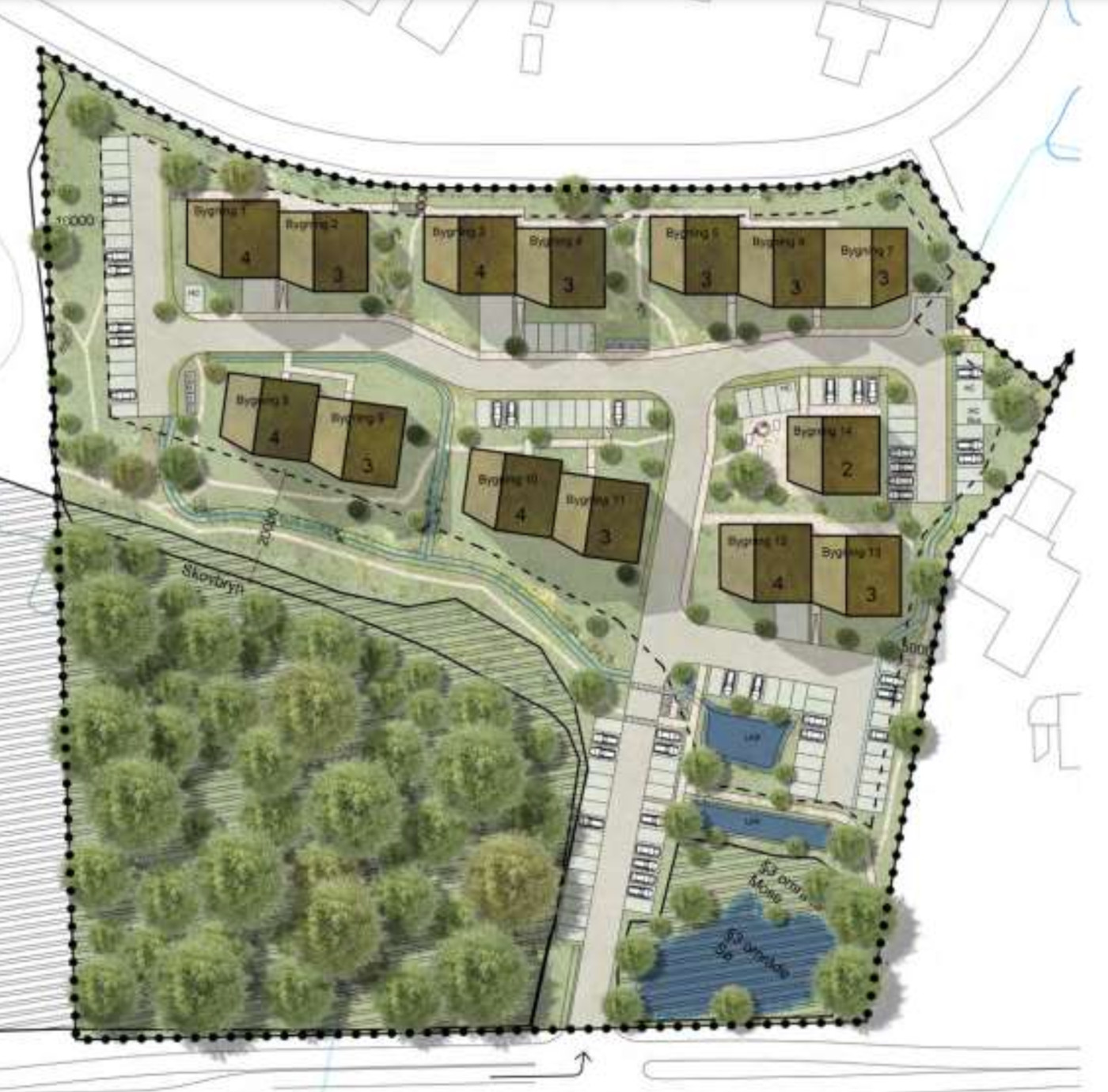
De 72 boliger er tegnet af arkitektfirmaet Loop, og når de står færdige, vil der være noget for enhver smag:
– Boligerne er bygget til en bred målgruppe. Når de kommer i slutsalg, vil der både være boliger til enlige, familier og seniorer, fortæller Michael Kühn Thomsen.
Købsaftalen på ejendommen er indgået med et privat selskab ved grundejerne Rikke og Jacob Thorbjørn, og der afventes en endelig godkendt lokalplan i december 2024.
Silkeborg Kommune har netop sendt et lokalplanforslag for projektet i ni ugers offentlig høring. Forslaget skal give mulighed for byggeri af et punkthus i to etager samt 13 punkthuse i tre-fire etager og et fælleshus.
Hverken det første – eller det sidste

Udviklingsprojektet er som nævnt ikke det første for entreprenøren – men det er heller ikke det sidste.
For Enemærke & Petersen handler det om at identificere muligheder for ejendomsudvikling og så gå ind i dem på den måde, der giver mening for forretningen, fortæller afdelingschef for projektudvikling Torben Brix:
– I vores forretning går vi ind i projekt- og ejendomsudvikling på en række forskellige niveauer: Vi kan gå ind helt tidligt i de kæmpestore boligprojekter, som vi gjorde på Køge Kyst eller bofællesskabet Sjællandsk Muld, og være sparringspartner for f.eks. pensionskasserne eller arbejde sammen med projektudviklingsteamet hos MT Højgaard Property Development, som vi har gjort på nybyggeriet af Kildegården i Roskilde. Og nu går vi så også ind og finder og arbejder med grundstykker, vi selv ønsker at udvikle.
Erasmus & Partnere samt ingeniørfirmaet Sori er hyret ind som ingeniør. Projektet forventes at gå i jorden i andet kvartal af 2025.






















